STG Steam Tubine and Generator House for Waste Heat Recovery Power Plant,Ghana | Made In China ZHM
Corrently, our one client in Ghana are planning to expand their current Gas Turbine Power Plants with the expansion of 1x22MW and 2x22MW Waste Heat Recovery Power Plant(WHR), Wassa/Chirano/Edikan, Ghana to upgrade the energy efficiency of all the current gas turbine power plants for more economic purpose, and we were honorably contracted for this expansion project of offer the STG Steam Tubine and Generator House for 1x22MW Waste Heat Recovery Power Plant,Ghana.
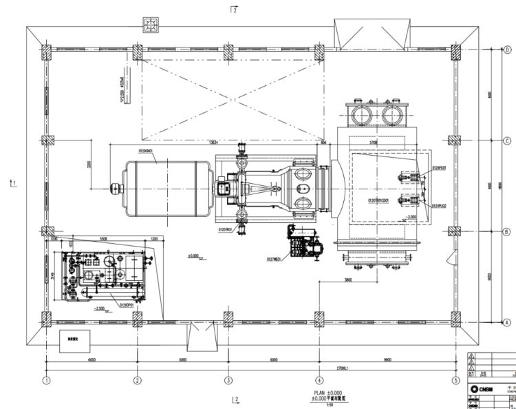
The followings are the main drawings and parameters of the WHR power plant and the STG Steam Tubine and Generator Houses.

3D perspective view of the STG Steam Tubine and Generator House for Waste Heat Recovery Power Plant,Ghana
-3 Sets 1x22MW and 1 set 1x22MW

3D perspective view of the STG Steam Tubine and Generator House for Waste Heat Recovery Power Plant,Ghana
-3 Sets 1x22MW and 1 set 1x22MW

3D perspective view of the STG Steam Tubine and Generator House for Waste Heat Recovery Power Plant,Ghana
-3 Sets 1x22MW and 1 set 1x22MW

1x22MW Thermodynamic System Giagram Layout of the STG Steam Tubine and Generator House for Waste Heat Recovery Power Plant,Ghana

1x22MW Section View of the STG Steam Tubine and Generator House for Waste Heat Recovery Power Plant,Ghana


2x22MW Thermodynamic System Giagram Layout of the STG Steam Tubine and Generator House for Waste Heat Recovery Power Plant,Ghana

2x22MW Section View of the STG Steam Tubine and Generator House for Waste Heat Recovery Power Plant,Ghana


Structure Section of the STG Steam Tubine and Generator House for Waste Heat Recovery Power Plant,Ghana
36/10ton Overhead Crane for installation and future repair and maintenance of the STG Steam Turbine and Generator:
|
工程代号及名称 PROJECT |
1x22MW WHR PROJECT FOR THE PLANT IN GHANA |
审 定 APPROVED |
|||
|
项目代号及名称 DEPARTMENT |
012-TURBINE
AND GENERATOR DEPARTMENT 012-汽轮发电机房 |
审 核 CHECKED |
|||
|
文件编号 DOCUMENT No. |
012-H-SBB |
编 制 DESIGNED |
|||
|
Slow-speed
bridge crane 慢速桥式起重机 |
Set 台 |
4 | |||
|
Model 型号 |
|||||
|
Span(LK) 跨距 |
m | 13.5 | |||
|
Capacity of
main hook 主钩起重量 |
t | 36 | |||
|
Capacity of
vice hook 副钩起重量 |
t | 10 | |||
|
Working
grade 工作级别 |
A3 | ||||
|
Lifting height
of main hook 主钩起升高度 |
m | 10 | |||
|
Lifting height
of vice hook 副钩起升高度 |
m | 12 | |||
|
Lifting speed
of main hook 主钩起升速度 |
m/min | 1.97 | |||
|
Lifting speed
of vice hook 副钩起升速度 |
m/min | 9.28 | |||
|
Moving speed of
crane 大车运行速度 |
m/min | 26 | |||
|
Moving speed of
trolley 小车运行速度 |
m/min | 17 | |||
|
Max. wheel
pressure 最大轮压 |
kN | ||||
|
Track 轨道 |
|||||
|
Power of all
motors 功率 |
kW | 28 | |||
|
Voltage
rating 电压 |
V | AC 415 | |||
Why ZHM Huawu Steel Metal STG Steam Tubine and Generator House for Waste Heat Recovery Power Plant?
![]()
|
![]()
|
![]()
|
![]()
|
| Reliable and Customized Designs | Cutting Edge Designing Process | Free Online Price System | Easy Bolt-by-number Assembly |
![]()
|
![]()
|
![]()
|
![]()
|
| Over Two Decades of Experience | Value For Money | Unmatched in Quality and Craftmanship | Excellent Customer Service |
Would you like to see more information and images of ZHM’s Metal Steel Structure STG Steam Tubine and Generator House for Waste Heat Recovery Power Plant ? Visit our Photo Gallery.
HOW CAN WE HELP YOU?
ZHM’s world-class team — together with our raw material suppliers and subcontractors — works to solve your most challenging design, engineering, farbrication or construction issues.
Contact ZHM by telephone at +86 135-8815-1981 (wechat and whatsapp) or send us your questions via email to info@zhmsteelworks.com













