Steel Structure Observation Towers

Steel Structure Observation Towers
This figure is a 15-meter angle steel combination observation watch tower, the structure of the use of lattice angle steel, steel bolts. The seismic intensity is 8 degrees, wrapped in ice 7mm, tower height 1/1000 height. Tower steels are hot-dip galvanized.
Design and Drawings composition: instructions, 15M FIG total observation tower, lightning rod needle configuration diagram, FIG tower structure, the structure of FIG JP1 internet, FIG guardrail, staircase configuration diagram , FIG bolt arrangement, basic foundation plan , a total of 7 sheets of drawings.
Observation tower advantages: durable and easy to move. The service life is 30 years. The tower body is made of high-quality steel structure with stairs for easy up, down and maintenance. The tower body is hot-dip galvanized.
Specifications and Requirements:
1, the basic wind pressure: w0 = 0.4 and 0.7KN/m2 two
2. Earthquake fortification intensity: 8 degrees and less than 8 degrees
3. Foundation bearing capacity: 100 and 200 KN/m2
4, ice thickness: ≤ 10mm 5, verticality: ≤ 1/1000
Tower design basis:
1. Design Rules for Lightning Protection of Buildings (GB50057-94)
2, tall structure design specification (GBJ135-90)
3, steel structure design specification (GB50017-2003)
4. Construction and acceptance procedures for tower steel structure (CECS 80:2006)
Welcome global businessmen to negotiate business.
Forest fire observation tower
The observation tower is used for forest fire prevention and the border guards checkpoints look out.
Products:
| Material | Q345B/Q355B/S355JR/ASTM A572 Gr.50 |
| Height | 1-80m |
| Wind Speed Velocity |
50m/s |
|
Service Life |
More than 50 years |
|
Surface Treatment |
Hot-dipped galvanized |
|
Design Standard |
GB / ANSI/TIA-222-G |
| Brand | ZHM Huawu Steel |

Steel Structure Observation Towers: 15m Tower General Layout Observation Towers

Steel Structure Observation Towers: Lighting Rod Structure Diagrams

Steel Structure Observation Towers: Tower 1 Section Structures

Steel Structure Observation Towers: Steel Structure Observation Towers: Platform JP1 Structure Diagram

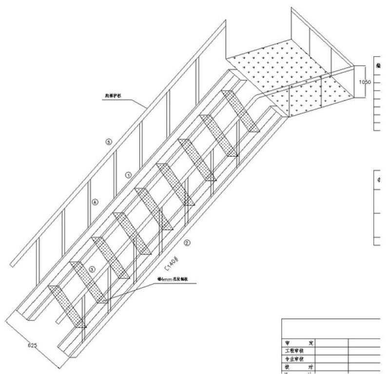
Steel Structure Observation Towers: Staircase Structures

Steel Structure Observation Towers: Ground Floor Foundatoin Plan Details
Why ZHM Huawu Metal Steel Structure Observation Towers ?
![]()
|
![]()
|
![]()
|
![]()
|
| Reliable and Customized Designs | Cutting Edge Designing Process | Free Online Price System | Easy Bolt-by-number Assembly |
![]()
|
![]()
|
![]()
|
![]()
|
| Over Two Decades of Experience | Value For Money | Unmatched in Quality and Craftmanship | Excellent Customer Service |
Would you like to see more information and images of ZHM Huawu Steel's Metal Steel Structure Observation Towers ? Visit our Photo Gallery.
HOW CAN WE HELP YOU?
ZHM’s world-class team — together with our raw material suppliers and subcontractors — works to solve your most challenging design, engineering, farbrication or construction issues.
Contact ZHM by telephone at +86 135-8815-1981 (wechat and whatsapp) or send us your questions via email to info@zhmsteelworks.com












